Plane deine Anreise
Hier findest du verschiedene Möglichkeiten dich zum und am Campus zu orientieren und erfährst, wie du zur Uni Wuppertal gelangst.
Vom Bahnhof zur Uni
 
        
    
    
Wenn du mit dem Zug nach Wuppertal kommst, fahre bis Wuppertal Hauptbahnhof. Von dort geht es per Bus weiter zur Uni. Dafür kannst du die Linien 615, 625 und 645 oder den extra für die Uni zuständigen E-Bus nehmen. Außerdem bist du auch vom Hauptbahnhof in 20 Minuten zu Fuß am Campus Grifflenberg.
Am ersten Tag der SommerUni treffen wir uns auf dem Hauptcampus „Campus Grifflenberg“. Auf diesem Campus finden eine Vielzahl der SommerUni-Veranstaltungen statt (der Fächer Mathematik, Informatik, Biologie, Physik, Chemie, Lebensmittelchemie, Sicherheitstechnik und Maschinenbau). Außerdem haben wir noch den „Campus Haspel“ (hier finden die Veranstaltungen der Architektur und vom Bauingenieurwesen statt) und den „Campus Freundenberg“ (hier kannst du u.a. Veranstaltungen der Elektrotechnik und der Informationstechnik besuchen).
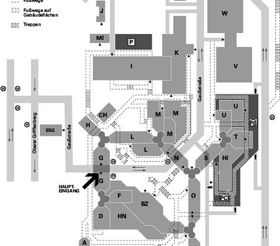
Lagepläne der Uni
Die Lagepläne der Uni Wuppertal zeigen dir nochmal genau, wo du die Räume der einzelnen Veranstaltungen finden kannst.
 
		Campus Grifflenberg
 
		Campus Freudenberg
 
		Campus Haspel
Campusapp
 
        
    
    
Besonders sinnvoll ist es, die Campusapp der Bergischen Universität Wuppertal zu nutzen. Mit Hilfe dieser kannst du dich besser auf den drei Campus zurechtfinden. Außerdem findest du dort die Speisepläne. Lad sie dir doch unter diesen Links herunter.
Auf den Seiten des ZIM werden die Funktionen der App näher erklärt:
Campuswechsel
 
            
        
    
    
Um zwischen den Campus zu wechseln, solltest du genügend Zeit einplanen. Wie lange du brauchst kannst du dieser Grafik oder dem Handout entnehmen.
zuletzt bearbeitet am: 05.03.2025
